5 locali in vendita

Chiavari, Via piacenza
€ 350.000
5 locali 5 locali
120 Mq 120 Mq
2 bagni 2 bagni

5 locali in vendita

Chiavari, Via piacenza

Descrizione annuncio

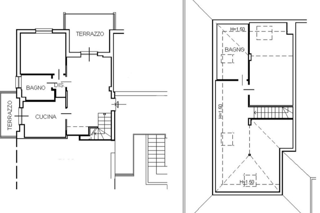
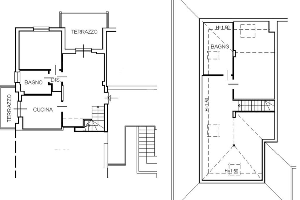
CHIAVARI - Via Piacenza - Proponiamo un appartamento situato al secondo ed ultimo piano di una piccola palazzina costruita negli anni '70. Con una superficie di 120 mq, l'immobile offre una disposizione funzionale con cinque locali, ideali per chi cerca una soluzione abitativa versatile infatti la disposizione interna permette di sfruttare al meglio ogni ambiente, garantendo comfort e funzionalità. Al primo livello troviamo la zona giorno che si apre su un luminoso soggiorno con affaccio sul terrazzino di 10 mq ideali per momenti di relax all'aperto, prima camera da letto singola/studio, bagno finestrato con doccia e cucina abitabile con accesso al balcone; salendo al secondo piano troviamo due camere da letto matrimoniali mansardate ed il secondo bagno finestrato con vasca. Il riscaldamento autonomo e l'aria condizionata garantiscono comfort in ogni stagione. Un posto auto riservato aggiunge praticità, rendendo questa soluzione abitativa particolarmente interessante per chi cerca comodità e spazio in una zona tranquilla. L'appartamento rappresenta un'opportunità unica per chi desidera vivere in un contesto residenziale ben servito, senza rinunciare alla vicinanza al centro cittadino.

Mostra tutto

Nelle vicinanze

Trasporto pubblico Trasporto pubblico
stazione di Chiavari
stazione di Chiavari
1,2 Km
Lavagna
Lavagna
1,5 Km
Trasporto pubblico
30 m
Ricariche auto elettriche Ricariche auto elettriche
Duferco Chiavari
1,1 Km
Euronics Dimo San Salvatore
2,1 Km
Scuole Scuole
Scuole
310 m
Chiostro di San Francesco
710 m
Scuole Elementari Riboli
910 m
Liceo Artistico Statale Luzzati
940 m
Scuola Pubblicitaria
990 m
Farmacia Farmacia
Farmacia dei frati
490 m
Farmacia Bellagamba
810 m
Farmacia Podestà
970 m
Farmacia San Giovanni
980 m
Farmacia Centrale
1,6 Km
Ospedali Ospedali
Ospedale di Lavagna
1,0 Km
Polo Ospedaliero di Chiavari
1,0 Km
Supermercati Supermercati
Carrefour Express
470 m
Conad
500 m
Supermercati
560 m
In's
600 m
Dimeglio
800 m
Negozi Negozi
Negozi
470 m
Bruno & Pietro
600 m
Aqua e Farina
790 m
Balin.. Pan e Fügassa
950 m
Antico Forno
1,2 Km
Bar Bar
Bar Davide
520 m
Bar
610 m
Vinoteca
700 m
La Mattonella
930 m
Tossini
1,0 Km
Ristoranti Ristoranti
Pizzeria Happy Hour 2
470 m
Pizzeria Verdi
540 m
Capo Borgo
620 m
Pizzaria N.6
760 m
bottega nazionale
890 m
Mostra tutto

Caratteristiche

Rif.:
61159399
Piano:
2 di 2 (ultimo Piano)
Posti auto:
1
Balconi:
1
Terrazzi:
1
Camere da letto:
3
Mostra tutto
Prezzo Prezzo
€ 350.000
Rata mutuo Rata mutuo
€ 1.663 / mese
Spese annue Spese annue
€ 1.000
Proponi il tuo prezzoProponi il tuo prezzo

Classe Energetica

G
G
G
G
G
G
G
G
G
Anno di costruzione:
1970
Riscaldamento:
Autonomo
Tipo impianto:
A radiatori
Tipo alimentazione:
Metano

Ti interessa visionare l'immobile?

Fissa un appuntamento  Fissa un appuntamento

Richiedi informazioni

Clicca su Leggi per aprire l'informativa
* Questi campi sono obbligatori

Calcola il tuo mutuo

Semplice e senza impegno
Anticipo

( % )
Mutuo

( % )

pochi semplici passi

inserisci i tuoi dati
Questionario completato
Grazie per aver richiesto un appuntamento senza impegno con un nostro Consulente del Credito e Assicurativo.

Hai inserito correttamente tutti i dati necessari e a breve riceverai una e-mail con un link da convalidare per inviare i tuoi dati.
Affiliato
Studio Chiavari 3 Snc
Via Entella, 219-221 16043 Chiavari (GE)

Il nostro staff


  • Andrea Giacobbe
    Affiliato

  • Franco Giacheri
    Affiliato

  • Giorgia Giordano
    Coordinatrice

  • Nicolò Massone
    Collaboratore

  • Beatrice Senno
    Collaboratrice
Via Entella, 219-221 16043 Chiavari (GE)
Zona: Chiavari Levante
Mostra su mappa
Orari: dal lunedì al venerdì 9:00 - 12:30 / 15:00 - 19:30 sabato chiusura ore 19:00
Affiliato
Studio Chiavari 3 Snc
Via Entella, 219-221 16043 Chiavari (GE)

2026 Tecnocasa Franchising S.p.A. - P. IVA 08365160152 - Via Monte Bianco 60/A 20089 Rozzano (MI). Ogni agenzia ha un proprio titolare ed è autonoma. Privacy policy | Policy utilizzo | Cookie policy